札幌賃貸不動産情報サイト M's Net エムズネット アパマンショップ お問い合せ
札幌賃貸不動産情報サイト M's Net エムズネット
アパマンショップ お問い合せ

HOME > 物件詳細

店舗・事務所 札幌市東区北十六条東

【東区エリア】【メディカルビル】【地下鉄 環状通東駅 徒歩3分】 婦人科、耳鼻科、眼科歓迎致します。 別途患者様用の駐車場あります。 業種、諸費用なんでもご相談ください。

所在地 交通
最寄り駅/停
徒歩
バス
賃料(税込)
共益費
敷金
礼金
階部分
階建
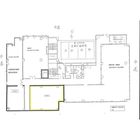
広さ 物件種別
建築年月
札幌市東区北十六条東 札幌市東豊線
環状通東
駅徒歩 3分 257,510円
33,440円
1,404,600円
なし
5階部分
8階建
31.2坪(103.00m²) 店舗・事務所
1998/9

※広さの表記について
こちらは、募集上の目安であり、契約面積、登記面積とは異なる場合がございます。
※本資料は貸主及び管理会社からの情報を基に作成しており、物件写真・間取図・設備条件等において、現状と相違がある可能性がございます。
その場合は現状を優先とさせて頂きます。物件により、契約時に火災保険・水廻消毒料・町内会費・清掃料等が必要な場合がございます。
詳しくは担当店へお問合せ下さい。

所在地 交通
最寄り駅/停
徒歩
バス
賃料(税込)
共益費
札幌市東区北十六条東 札幌市東豊線
環状通東
駅徒歩 3分 257,510円
33,440円
敷金
礼金
階部分
階建
広さ 物件種別
建築年月
1,404,600円
なし
5階部分
8階建
31.2坪(103.00m²) 店舗・事務所
1998/9

※広さの表記について
こちらは、募集上の目安であり、契約面積、登記面積とは異なる場合がございます。
※本資料は貸主及び管理会社からの情報を基に作成しており、物件写真・間取図・設備条件等において、現状と相違がある可能性がございます。
その場合は現状を優先とさせて頂きます。物件により、契約時に火災保険・水廻消毒料・町内会費・清掃料等が必要な場合がございます。
詳しくは担当店へお問合せ下さい。

株式会社エムズテナント事業部

札幌市白石区東札幌三条6丁目1-1 第2小竹ビル1F アパマンショップ白石店内

TEL.011-867-6667 FAX.011-867-6661

※お問い合わせの際に「お問い合わせ番号」と「エムズネットを見た」と
お伝えいただきますとスムーズです。
お問い合わせ番号:37235

店舗情報を見る 店舗に問い合わせ
戻る
進む
物件概要

お問合せ番号

37235

情報更新日

2025年11月10日

所在地

札幌市東区北十六条東

交通機関

札幌市東豊線 環状通東 駅徒歩 3分
札幌市東豊線 東区役所前 13分

募集条件

事務所 、 店舗

建物構造

SRC(鉄骨鉄筋コンクリート造)

所在階/階建て

5階部分/8階建

入居可能日

相談

駐車場/形態


16,500円
※駐車場の空き状況に関しましてはお問い合わせ下さい。

共有設備

専有設備

電気

お気に入りリストに追加
地図

※地図の位置は実際の場所とは異なる場合がございますので情報掲載元にご確認ください。

お問い合せ
株式会社エムズテナント事業部

札幌市白石区東札幌三条6丁目1-1 第2小竹ビル1F アパマンショップ白石店内

TEL.011-867-6667 FAX.011-867-6661

※お問い合わせの際に「お問い合わせ番号」と「エムズネットを見た」と
お伝えいただきますとスムーズです。
お問い合わせ番号:37235

店舗情報を見る 店舗に問い合わせ
株式会社エムズ

〒003-0003 札幌市白石区東札幌三条6丁目1-1第2小竹ビル 1F アパマンショップ白石店内

TEL:011-867-6667 / FAX:011-867-6661

Copyright© 2013- M's Net Co.,Ltd. All rights reserved.