札幌賃貸不動産情報サイト M's Net エムズネット アパマンショップ お問い合せ
札幌賃貸不動産情報サイト M's Net エムズネット
アパマンショップ お問い合せ

HOME > 物件詳細

事務所 札幌市中央区南二条西

【大通エリア】東西線「西11丁目」徒歩4分、37坪事務所の募集です。2025年7月に壁クロス・天井・タイルカーペット内装済みで室内はきれいになっております。立体駐車場1台分確保可能。諸条件ご相談ください!

所在地 交通
最寄り駅/停
徒歩
バス
賃料(税込)
共益費
敷金
礼金
階部分
階建
広さ 物件種別
建築年月
札幌市中央区南二条西 札幌市軌道線
中央区役所前
駅徒歩 3分 304,920円
60,984円
1,108,800円
なし
4階部分
6階建て
37.0坪(122.18m²) 事務所

※広さの表記について
こちらは、募集上の目安であり、契約面積、登記面積とは異なる場合がございます。
※本資料は貸主及び管理会社からの情報を基に作成しており、物件写真・間取図・設備条件等において、現状と相違がある可能性がございます。
その場合は現状を優先とさせて頂きます。物件により、契約時に火災保険・水廻消毒料・町内会費・清掃料等が必要な場合がございます。
詳しくは担当店へお問合せ下さい。

所在地 交通
最寄り駅/停
徒歩
バス
賃料(税込)
共益費
札幌市中央区南二条西 札幌市軌道線
中央区役所前
駅徒歩 3分 304,920円
60,984円
敷金
礼金
階部分
階建
広さ 物件種別
建築年月
1,108,800円
なし
4階部分
6階建て
37.0坪(122.18m²) 事務所

※広さの表記について
こちらは、募集上の目安であり、契約面積、登記面積とは異なる場合がございます。
※本資料は貸主及び管理会社からの情報を基に作成しており、物件写真・間取図・設備条件等において、現状と相違がある可能性がございます。
その場合は現状を優先とさせて頂きます。物件により、契約時に火災保険・水廻消毒料・町内会費・清掃料等が必要な場合がございます。
詳しくは担当店へお問合せ下さい。

株式会社エムズテナント事業部

札幌市白石区東札幌三条6丁目1-1 第2小竹ビル1F アパマンショップ白石店内

TEL.011-867-6667 FAX.011-867-6661

※お問い合わせの際に「お問い合わせ番号」と「エムズネットを見た」と
お伝えいただきますとスムーズです。
お問い合わせ番号:37149

店舗情報を見る 店舗に問い合わせ
戻る
進む
物件概要

お問合せ番号

37149

情報更新日

2025年11月30日

所在地

札幌市中央区南二条西

交通機関

札幌市軌道線 中央区役所前 駅徒歩 3分
札幌市東西線 西11丁目 4分

募集条件

事務所

建物構造

所在階/階建て

4階部分/6階建て

入居可能日

駐車場/形態

有/立体駐車場
22,000円
※駐車場の空き状況に関しましてはお問い合わせ下さい。

共有設備

専有設備

電気 、 エアコン 、 照明(残置物) 、 インターネット(現地確認)

お気に入りリストに追加
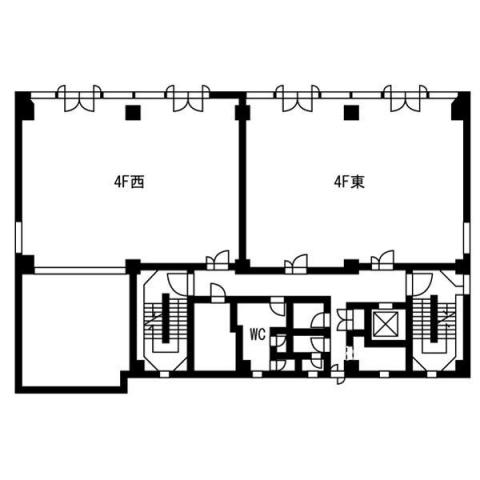
フロア情報

部屋番号

坪数/面積

賃料(税込)/共益費

種別

詳細

4F東号室

37.0坪/122.18m²

304,920円/60,984円

事務所

物件詳細を見る

部屋番号 坪数/
面積
賃料(税込)/
共益費
種別 詳細
4F東号室 37.0坪/
122.18m²
304,920円
60,984円
事務所 物件詳細を見る
地図

※地図の位置は実際の場所とは異なる場合がございますので情報掲載元にご確認ください。

お問い合せ
株式会社エムズテナント事業部

札幌市白石区東札幌三条6丁目1-1 第2小竹ビル1F アパマンショップ白石店内

TEL.011-867-6667 FAX.011-867-6661

※お問い合わせの際に「お問い合わせ番号」と「エムズネットを見た」と
お伝えいただきますとスムーズです。
お問い合わせ番号:37149

店舗情報を見る 店舗に問い合わせ
株式会社エムズ

〒003-0003 札幌市白石区東札幌三条6丁目1-1第2小竹ビル 1F アパマンショップ白石店内

TEL:011-867-6667 / FAX:011-867-6661

Copyright© 2013- M's Net Co.,Ltd. All rights reserved.