札幌賃貸不動産情報サイト M's Net エムズネット アパマンショップ お問い合せ
札幌賃貸不動産情報サイト M's Net エムズネット
アパマンショップ お問い合せ

HOME > 物件詳細

店舗・事務所 札幌市中央区北一条西

【中央区/西18丁目エリア】東西線西18丁目から徒歩4分の好立地!北1条通り沿いなので視認性もバッチリ!駐車場はありませんのでご注意ください!業種、諸費用お気軽にご相談ください!

所在地 交通
最寄り駅/停
徒歩
バス
賃料(税込)
共益費
敷金
礼金
階部分
階建
広さ 物件種別
建築年月
札幌市中央区北一条西 札幌市東西線
西18丁目
駅徒歩 4分 63,800円
13,200円
232,000円
なし
4階部分
6階建
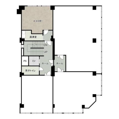
8.0坪(26.44m²) 店舗・事務所

※広さの表記について
こちらは、募集上の目安であり、契約面積、登記面積とは異なる場合がございます。
※本資料は貸主及び管理会社からの情報を基に作成しており、物件写真・間取図・設備条件等において、現状と相違がある可能性がございます。
その場合は現状を優先とさせて頂きます。物件により、契約時に火災保険・水廻消毒料・町内会費・清掃料等が必要な場合がございます。
詳しくは担当店へお問合せ下さい。

所在地 交通
最寄り駅/停
徒歩
バス
賃料(税込)
共益費
札幌市中央区北一条西 札幌市東西線
西18丁目
駅徒歩 4分 63,800円
13,200円
敷金
礼金
階部分
階建
広さ 物件種別
建築年月
232,000円
なし
4階部分
6階建
8.0坪(26.44m²) 店舗・事務所

※広さの表記について
こちらは、募集上の目安であり、契約面積、登記面積とは異なる場合がございます。
※本資料は貸主及び管理会社からの情報を基に作成しており、物件写真・間取図・設備条件等において、現状と相違がある可能性がございます。
その場合は現状を優先とさせて頂きます。物件により、契約時に火災保険・水廻消毒料・町内会費・清掃料等が必要な場合がございます。
詳しくは担当店へお問合せ下さい。

株式会社エムズテナント事業部

札幌市白石区東札幌三条6丁目1-1 第2小竹ビル1F アパマンショップ白石店内

TEL.011-867-6667 FAX.011-867-6661

※お問い合わせの際に「お問い合わせ番号」と「エムズネットを見た」と
お伝えいただきますとスムーズです。
お問い合わせ番号:37054

店舗情報を見る 店舗に問い合わせ
戻る
進む
物件概要

お問合せ番号

37054

情報更新日

2025年10月16日

所在地

札幌市中央区北一条西

交通機関

札幌市東西線 西18丁目 駅徒歩 4分
札幌市軌道線 西15丁目 9分

募集条件

事務所 、 その他 、 店舗

建物構造

RC(鉄筋コンクリート造)

所在階/階建て

4階部分/6階建

入居可能日

駐車場/形態

※駐車場の空き状況に関しましてはお問い合わせ下さい。

共有設備

電気 、 トイレ

専有設備

電気 、 暖房(種別現地確認) 、 照明(残置物) 、 エアコン(残置)

備考

敷金償却有(1か月分)

お気に入りリストに追加
フロア情報

部屋番号

坪数/面積

賃料(税込)/共益費

種別

詳細

5-B号室

13.5坪/44.62m²

106,150円/22,275円

事務所

物件詳細を見る

6F-A号室

8.0坪/26.44m²

63,800円/13,200円

店舗・事務所

物件詳細を見る

6F-B号室

18.0坪/59.50m²

140,800円/29,700円

店舗・事務所

物件詳細を見る

6F-C号室

16.0坪/52.89m²

125,400円/26,400円

店舗・事務所

物件詳細を見る

部屋番号 坪数/
面積
賃料(税込)/
共益費
種別 詳細
5-B号室 13.5坪/
44.62m²
106,150円
22,275円
事務所 物件詳細を見る
6F-A号室 8.0坪/
26.44m²
63,800円
13,200円
店舗・事務所 物件詳細を見る
6F-B号室 18.0坪/
59.50m²
140,800円
29,700円
店舗・事務所 物件詳細を見る
6F-C号室 16.0坪/
52.89m²
125,400円
26,400円
店舗・事務所 物件詳細を見る
地図

※地図の位置は実際の場所とは異なる場合がございますので情報掲載元にご確認ください。

お問い合せ
株式会社エムズテナント事業部

札幌市白石区東札幌三条6丁目1-1 第2小竹ビル1F アパマンショップ白石店内

TEL.011-867-6667 FAX.011-867-6661

※お問い合わせの際に「お問い合わせ番号」と「エムズネットを見た」と
お伝えいただきますとスムーズです。
お問い合わせ番号:37054

店舗情報を見る 店舗に問い合わせ
株式会社エムズ

〒003-0003 札幌市白石区東札幌三条6丁目1-1第2小竹ビル 1F アパマンショップ白石店内

TEL:011-867-6667 / FAX:011-867-6661

Copyright© 2013- M's Net Co.,Ltd. All rights reserved.