札幌賃貸不動産情報サイト M's Net エムズネット アパマンショップ お問い合せ
札幌賃貸不動産情報サイト M's Net エムズネット
アパマンショップ お問い合せ

HOME > 物件詳細

倉庫・工場 札幌市北区新琴似五条

【札幌市北区新琴似エリア】1階店舗(倉庫)2階住戸タイプのテナントです。業種、諸費用なんでもご相談ください。近隣が住居なので音やにおいのある事業種は使用できません。

所在地 交通
最寄り駅/停
徒歩
バス
賃料(税込)
共益費
敷金
礼金
階部分
階建
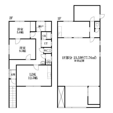
広さ 物件種別
建築年月
札幌市北区新琴似五条 学園都市線
新琴似
駅徒歩 14分 121,000円
なし
110,000円
なし
1階部分
2階建
47.0坪(155.52m²) 倉庫・工場

※広さの表記について
こちらは、募集上の目安であり、契約面積、登記面積とは異なる場合がございます。
※本資料は貸主及び管理会社からの情報を基に作成しており、物件写真・間取図・設備条件等において、現状と相違がある可能性がございます。
その場合は現状を優先とさせて頂きます。物件により、契約時に火災保険・水廻消毒料・町内会費・清掃料等が必要な場合がございます。
詳しくは担当店へお問合せ下さい。

所在地 交通
最寄り駅/停
徒歩
バス
賃料(税込)
共益費
札幌市北区新琴似五条 学園都市線
新琴似
駅徒歩 14分 121,000円
なし
敷金
礼金
階部分
階建
広さ 物件種別
建築年月
110,000円
なし
1階部分
2階建
47.0坪(155.52m²) 倉庫・工場

※広さの表記について
こちらは、募集上の目安であり、契約面積、登記面積とは異なる場合がございます。
※本資料は貸主及び管理会社からの情報を基に作成しており、物件写真・間取図・設備条件等において、現状と相違がある可能性がございます。
その場合は現状を優先とさせて頂きます。物件により、契約時に火災保険・水廻消毒料・町内会費・清掃料等が必要な場合がございます。
詳しくは担当店へお問合せ下さい。

株式会社エムズテナント事業部

札幌市白石区東札幌三条6丁目1-1 第2小竹ビル1F アパマンショップ白石店内

TEL.011-867-6667 FAX.011-867-6661

※お問い合わせの際に「お問い合わせ番号」と「エムズネットを見た」と
お伝えいただきますとスムーズです。
お問い合わせ番号:37053

店舗情報を見る 店舗に問い合わせ
戻る
進む
物件概要

お問合せ番号

37053

情報更新日

2025年10月14日

所在地

札幌市北区新琴似五条

交通機関

学園都市線 新琴似 駅徒歩 14分
札幌市南北線 麻生 18分

募集条件

貸倉庫 、 その他

建物構造

木造

所在階/階建て

1階部分/2階建

入居可能日

相談

駐車場/形態

※駐車場の空き状況に関しましてはお問い合わせ下さい。

共有設備

専有設備

電気 、 給排水 、 トイレ

その他費用

保証会社利用必須

お気に入りリストに追加
フロア情報

部屋番号

坪数/面積

賃料(税込)/共益費

種別

詳細

1棟号室

47.0坪/155.52m²

121,000円/なし

店舗・事務所

物件詳細を見る

部屋番号 坪数/
面積
賃料(税込)/
共益費
種別 詳細
1棟号室 47.0坪/
155.52m²
121,000円 なし 店舗・事務所 物件詳細を見る
地図

※地図の位置は実際の場所とは異なる場合がございますので情報掲載元にご確認ください。

お問い合せ
株式会社エムズテナント事業部

札幌市白石区東札幌三条6丁目1-1 第2小竹ビル1F アパマンショップ白石店内

TEL.011-867-6667 FAX.011-867-6661

※お問い合わせの際に「お問い合わせ番号」と「エムズネットを見た」と
お伝えいただきますとスムーズです。
お問い合わせ番号:37053

店舗情報を見る 店舗に問い合わせ
株式会社エムズ

〒003-0003 札幌市白石区東札幌三条6丁目1-1第2小竹ビル 1F アパマンショップ白石店内

TEL:011-867-6667 / FAX:011-867-6661

Copyright© 2013- M's Net Co.,Ltd. All rights reserved.