札幌賃貸不動産情報サイト M's Net エムズネット アパマンショップ お問い合せ
札幌賃貸不動産情報サイト M's Net エムズネット
アパマンショップ お問い合せ

HOME > 物件詳細

事務所 札幌市中央区北二条西

さっぽろ駅 徒歩4分の好立地!! 札幌の中心部で人気の物件に空き予定が出ました。 業種、諸費用なんでもご相談ください。 お待ちしております。

所在地 交通
最寄り駅/停
徒歩
バス
賃料(税込)
共益費
敷金
礼金
階部分
階建
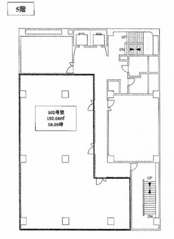
広さ 物件種別
建築年月
札幌市中央区北二条西 札幌市南北線
さっぽろ
駅徒歩 4分 830,830円
なし
4,531,800円
なし
5階部分
10階建
58.1坪(192.04m²) 事務所
1974/12

※広さの表記について
こちらは、募集上の目安であり、契約面積、登記面積とは異なる場合がございます。
※本資料は貸主及び管理会社からの情報を基に作成しており、物件写真・間取図・設備条件等において、現状と相違がある可能性がございます。
その場合は現状を優先とさせて頂きます。物件により、契約時に火災保険・水廻消毒料・町内会費・清掃料等が必要な場合がございます。
詳しくは担当店へお問合せ下さい。

所在地 交通
最寄り駅/停
徒歩
バス
賃料(税込)
共益費
札幌市中央区北二条西 札幌市南北線
さっぽろ
駅徒歩 4分 830,830円
なし
敷金
礼金
階部分
階建
広さ 物件種別
建築年月
4,531,800円
なし
5階部分
10階建
58.1坪(192.04m²) 事務所
1974/12

※広さの表記について
こちらは、募集上の目安であり、契約面積、登記面積とは異なる場合がございます。
※本資料は貸主及び管理会社からの情報を基に作成しており、物件写真・間取図・設備条件等において、現状と相違がある可能性がございます。
その場合は現状を優先とさせて頂きます。物件により、契約時に火災保険・水廻消毒料・町内会費・清掃料等が必要な場合がございます。
詳しくは担当店へお問合せ下さい。

株式会社エムズテナント事業部

札幌市白石区東札幌三条6丁目1-1 第2小竹ビル1F アパマンショップ白石店内

TEL.011-867-6667 FAX.011-867-6661

※お問い合わせの際に「お問い合わせ番号」と「エムズネットを見た」と
お伝えいただきますとスムーズです。
お問い合わせ番号:36841

店舗情報を見る 店舗に問い合わせ
戻る
進む
物件概要

お問合せ番号

36841

情報更新日

2025年10月02日

所在地

札幌市中央区北二条西

交通機関

札幌市南北線 さっぽろ 駅徒歩 4分
函館本線 札幌 7分

募集条件

事務所 、 その他

建物構造

SRC(鉄骨鉄筋コンクリート造)

所在階/階建て

5階部分/10階建

入居可能日

相談 2025/3/予定

駐車場/形態

有/機械式
33,000円
※駐車場の空き状況に関しましてはお問い合わせ下さい。

共有設備

専有設備

電気 、 給排水

お気に入りリストに追加
フロア情報

部屋番号

坪数/面積

賃料(税込)/共益費

種別

詳細

304号室

19.3坪/63.74m²

275,990円/なし

事務所

物件詳細を見る

401号室

13.8坪/45.60m²

197,340円/なし

事務所

物件詳細を見る

405号室

13.5坪/44.60m²

193,050円/なし

事務所

物件詳細を見る

601号室

9.5坪/31.40m²

135,850円/なし

事務所

物件詳細を見る

部屋番号 坪数/
面積
賃料(税込)/
共益費
種別 詳細
304号室 19.3坪/
63.74m²
275,990円 なし 事務所 物件詳細を見る
401号室 13.8坪/
45.60m²
197,340円 なし 事務所 物件詳細を見る
405号室 13.5坪/
44.60m²
193,050円 なし 事務所 物件詳細を見る
601号室 9.5坪/
31.40m²
135,850円 なし 事務所 物件詳細を見る
地図

※地図の位置は実際の場所とは異なる場合がございますので情報掲載元にご確認ください。

お問い合せ
株式会社エムズテナント事業部

札幌市白石区東札幌三条6丁目1-1 第2小竹ビル1F アパマンショップ白石店内

TEL.011-867-6667 FAX.011-867-6661

※お問い合わせの際に「お問い合わせ番号」と「エムズネットを見た」と
お伝えいただきますとスムーズです。
お問い合わせ番号:36841

店舗情報を見る 店舗に問い合わせ
株式会社エムズ

〒003-0003 札幌市白石区東札幌三条6丁目1-1第2小竹ビル 1F アパマンショップ白石店内

TEL:011-867-6667 / FAX:011-867-6661

Copyright© 2013- M's Net Co.,Ltd. All rights reserved.