札幌賃貸不動産情報サイト M's Net エムズネット アパマンショップ お問い合せ
札幌賃貸不動産情報サイト M's Net エムズネット
アパマンショップ お問い合せ

HOME > 物件詳細

店舗・事務所 札幌市白石区栄通

【白石区/南郷・栄通エリア】〈新築メディカルビル!〉 整骨院・事務所・福祉・医療・店舗ビジネスなどにおすすめ。スケルトン渡し1階共用部にトイレあり。診療科目が重複する場合お断りさせていただくことがございます。詳細等お早めにお問い合わせください。

所在地 交通
最寄り駅/停
徒歩
バス
賃料(税込)
共益費
敷金
礼金
階部分
階建
広さ 物件種別
建築年月
札幌市白石区栄通 札幌市東西線
白石
駅徒歩 10分 198,000円
33,000円
540,000円
なし
4階部分
5階建て
20.5坪(67.90m²) 店舗・事務所

※広さの表記について
こちらは、募集上の目安であり、契約面積、登記面積とは異なる場合がございます。
※本資料は貸主及び管理会社からの情報を基に作成しており、物件写真・間取図・設備条件等において、現状と相違がある可能性がございます。
その場合は現状を優先とさせて頂きます。物件により、契約時に火災保険・水廻消毒料・町内会費・清掃料等が必要な場合がございます。
詳しくは担当店へお問合せ下さい。

所在地 交通
最寄り駅/停
徒歩
バス
賃料(税込)
共益費
札幌市白石区栄通 札幌市東西線
白石
駅徒歩 10分 198,000円
33,000円
敷金
礼金
階部分
階建
広さ 物件種別
建築年月
540,000円
なし
4階部分
5階建て
20.5坪(67.90m²) 店舗・事務所

※広さの表記について
こちらは、募集上の目安であり、契約面積、登記面積とは異なる場合がございます。
※本資料は貸主及び管理会社からの情報を基に作成しており、物件写真・間取図・設備条件等において、現状と相違がある可能性がございます。
その場合は現状を優先とさせて頂きます。物件により、契約時に火災保険・水廻消毒料・町内会費・清掃料等が必要な場合がございます。
詳しくは担当店へお問合せ下さい。

株式会社エムズテナント事業部

札幌市白石区東札幌三条6丁目1-1 第2小竹ビル1F アパマンショップ白石店内

TEL.011-867-6667 FAX.011-867-6661

※お問い合わせの際に「お問い合わせ番号」と「エムズネットを見た」と
お伝えいただきますとスムーズです。
お問い合わせ番号:36319

店舗情報を見る 店舗に問い合わせ
戻る
進む
物件概要

お問合せ番号

36319

情報更新日

2026年04月30日

所在地

札幌市白石区栄通

交通機関

札幌市東西線 白石 駅徒歩 10分
札幌市東西線 南郷7丁目 10分

募集条件

その他 、 店舗 、 医療関係 、 鍼灸・整体・整骨院

建物構造

RC(鉄筋コンクリート造)

所在階/階建て

4階部分/5階建て

入居可能日

相談 

駐車場/形態

有/屋外
11,000円
※駐車場の空き状況に関しましてはお問い合わせ下さい。

共有設備

電気

専有設備

電気 、 ガス

お気に入りリストに追加
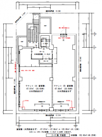
フロア情報

部屋番号

坪数/面積

賃料(税込)/共益費

種別

詳細

101号室

21.2坪/69.95m²

220,000円/33,000円

店舗・事務所

物件詳細を見る

201号室

41.1坪/135.95m²

396,000円/66,000円

店舗・事務所

物件詳細を見る

4F-B号室

20.5坪/67.90m²

198,000円/33,000円

店舗・事務所

物件詳細を見る

501号室

41.1坪/135.95m²

396,000円/66,000円

店舗・事務所

物件詳細を見る

部屋番号 坪数/
面積
賃料(税込)/
共益費
種別 詳細
101号室 21.2坪/
69.95m²
220,000円
33,000円
店舗・事務所 物件詳細を見る
201号室 41.1坪/
135.95m²
396,000円
66,000円
店舗・事務所 物件詳細を見る
4F-B号室 20.5坪/
67.90m²
198,000円
33,000円
店舗・事務所 物件詳細を見る
501号室 41.1坪/
135.95m²
396,000円
66,000円
店舗・事務所 物件詳細を見る
地図

※地図の位置は実際の場所とは異なる場合がございますので情報掲載元にご確認ください。

お問い合せ
株式会社エムズテナント事業部

札幌市白石区東札幌三条6丁目1-1 第2小竹ビル1F アパマンショップ白石店内

TEL.011-867-6667 FAX.011-867-6661

※お問い合わせの際に「お問い合わせ番号」と「エムズネットを見た」と
お伝えいただきますとスムーズです。
お問い合わせ番号:36319

店舗情報を見る 店舗に問い合わせ
株式会社エムズ

〒003-0003 札幌市白石区東札幌三条6丁目1-1第2小竹ビル 1F アパマンショップ白石店内

TEL:011-867-6667 / FAX:011-867-6661

Copyright© 2013- M's Net Co.,Ltd. All rights reserved.