HOME > 物件詳細
【札幌市 中心部】【地下鉄 東西線 大通駅徒歩1分】 定期借家契約 事務所利用におすすめ 100坪を超える広さの物件です。 築浅の綺麗なビル、お探しの方はぜひ一度ご覧ください。 業種、諸費用なんでもご相談ください。
| 所在地 | 交通 最寄り駅/停 | 徒歩 バス | 賃料(税込) 共益費 | 敷金 礼金 | 階部分 階建 | 広さ | 物件種別 建築年月 | 
|---|---|---|---|---|---|---|---|
| 札幌市中央区大通西 | 札幌市南北線 大通 | 駅徒歩 1分 | 2,673,704円 なし | 29,167,680円 なし | 11階部分 11階建て | 105.6坪(349.00m²) | 事務所 2023/秋竣工予定 | 
| 
							※広さの表記について | |||||||
| 所在地 | 交通 最寄り駅/停 | 徒歩 バス | 賃料(税込) 共益費 | 
|---|---|---|---|
| 札幌市中央区大通西 | 札幌市南北線 大通 | 駅徒歩 1分 | 2,673,704円 なし | 
| 敷金 礼金 | 階部分 階建 | 広さ | 物件種別 建築年月 | 
|---|---|---|---|
| 29,167,680円 なし | 11階部分 11階建て | 105.6坪(349.00m²) | 事務所 2023/秋竣工予定 | 
					
						※広さの表記について
						こちらは、募集上の目安であり、契約面積、登記面積とは異なる場合がございます。
					
					
						※本資料は貸主及び管理会社からの情報を基に作成しており、物件写真・間取図・設備条件等において、現状と相違がある可能性がございます。
						その場合は現状を優先とさせて頂きます。物件により、契約時に火災保険・水廻消毒料・町内会費・清掃料等が必要な場合がございます。
						詳しくは担当店へお問合せ下さい。
					
				
お問合せ番号
33911
情報更新日
2025年09月25日
所在地
札幌市中央区大通西
交通機関
															札幌市南北線 大通
							
							
															駅徒歩 1分
																					
															札幌市東西線 大通
														
															1分
																				
募集条件
事務所
建物構造
S(鉄骨造)
所在階/階建て
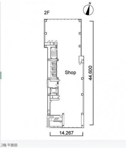
11階部分/11階建て
入居可能日
相談
駐車場/形態
															有/機械式
																						49,500円
																					※駐車場の空き状況に関しましてはお問い合わせ下さい。
						
共有設備
エレベーター
専有設備
電気
その他費用
塵芥費11000
部屋番号
坪数/面積
賃料(税込)/共益費
種別
詳細
| 部屋番号 | 坪数/ 面積 | 賃料(税込)/ 共益費 | 種別 | 詳細 | 
|---|---|---|---|---|
| 10階事務所 | 103.8坪/ 343.10m² | 2,627,658円 なし | 事務所 | 物件詳細を見る | 
| 8階-北号室 | 103.8坪/ 343.10m² | 2,627,658円 なし | 事務所 | 物件詳細を見る | 
※地図の位置は実際の場所とは異なる場合がございますので情報掲載元にご確認ください。
 
				〒003-0003 札幌市白石区東札幌三条6丁目1-1第2小竹ビル 1F アパマンショップ白石店内
TEL:011-867-6667 / FAX:011-867-6661
Copyright© 2013- M's Net Co.,Ltd. All rights reserved.