HOME > 物件詳細
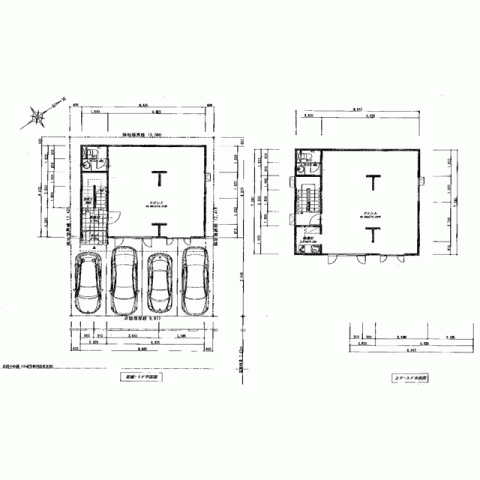
【北円山エリア】 JR 桑園駅 徒歩圏内の人気のエリア、好立地な物件です。 敷地内に3台程度の駐車場ついてます。 業種、諸費用なんでもご相談ください。
| 所在地 | 交通 最寄り駅/停 | 徒歩 バス | 賃料(税込) 共益費 | 敷金 礼金 | 階部分 階建 | 広さ | 物件種別 建築年月 | 
|---|---|---|---|---|---|---|---|
| 札幌市中央区北七条西 | 札幌市東西線 二十四軒 | 駅徒歩 7分 | 450,000円 なし | 1,350,000円 450,000円 | 1-3階部分 3階建 | 42.9坪(141.86m²) | 店舗・事務所 | 
| 
							※広さの表記について | |||||||
| 所在地 | 交通 最寄り駅/停 | 徒歩 バス | 賃料(税込) 共益費 | 
|---|---|---|---|
| 札幌市中央区北七条西 | 札幌市東西線 二十四軒 | 駅徒歩 7分 | 450,000円 なし | 
| 敷金 礼金 | 階部分 階建 | 広さ | 物件種別 建築年月 | 
|---|---|---|---|
| 1,350,000円 450,000円 | 1-3階部分 3階建 | 42.9坪(141.86m²) | 店舗・事務所 | 
					
						※広さの表記について
						こちらは、募集上の目安であり、契約面積、登記面積とは異なる場合がございます。
					
					
						※本資料は貸主及び管理会社からの情報を基に作成しており、物件写真・間取図・設備条件等において、現状と相違がある可能性がございます。
						その場合は現状を優先とさせて頂きます。物件により、契約時に火災保険・水廻消毒料・町内会費・清掃料等が必要な場合がございます。
						詳しくは担当店へお問合せ下さい。
					
				
お問合せ番号
26914
情報更新日
2025年09月18日
所在地
札幌市中央区北七条西
交通機関
															札幌市東西線 二十四軒
							
							
															駅徒歩 7分
																					
															札幌市東西線 西28丁目
														
															8分
																				
募集条件
事務所 、 店舗
建物構造
所在階/階建て
1-3階部分/3階建
入居可能日
即入居可
駐車場/形態
															有/屋外
																												※駐車場の空き状況に関しましてはお問い合わせ下さい。
						
共有設備
電気
専有設備
電気 、 ガス 、 暖房(種別現地確認) 、 エアコン 、 照明 、 給湯(残置物) 、 給排水 、 給水設備 、 トイレ 、 タイルカーペット
※地図の位置は実際の場所とは異なる場合がございますので情報掲載元にご確認ください。
 
				〒003-0003 札幌市白石区東札幌三条6丁目1-1第2小竹ビル 1F アパマンショップ白石店内
TEL:011-867-6667 / FAX:011-867-6661
Copyright© 2013- M's Net Co.,Ltd. All rights reserved.