札幌賃貸不動産情報サイト M's Net エムズネット アパマンショップ お問い合せ
札幌賃貸不動産情報サイト M's Net エムズネット
アパマンショップ お問い合せ

HOME > 物件詳細

店舗・事務所 札幌市中央区南一条西

【札幌中心部】【地下鉄 東西線 大通駅 徒歩4分】 札幌中心部で事務所、店舗等何業でも最適な立地です。 2026年5月末に空き予定です。賃料等、ご相談ください。 業種、諸費用なんでもお問合せお待ちしてます。

所在地 交通
最寄り駅/停
徒歩
バス
賃料(税込)
共益費
敷金
礼金
階部分
階建
広さ 物件種別
建築年月
札幌市中央区南一条西 札幌市南北線
大通
駅徒歩 4分 379,379円
87,549円
4,138,680円
なし
6階部分
8階建
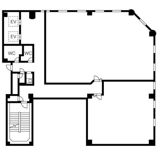
26.5坪(87.60m²) 店舗・事務所
1999/2/15

※広さの表記について
こちらは、募集上の目安であり、契約面積、登記面積とは異なる場合がございます。
※本資料は貸主及び管理会社からの情報を基に作成しており、物件写真・間取図・設備条件等において、現状と相違がある可能性がございます。
その場合は現状を優先とさせて頂きます。物件により、契約時に火災保険・水廻消毒料・町内会費・清掃料等が必要な場合がございます。
詳しくは担当店へお問合せ下さい。

所在地 交通
最寄り駅/停
徒歩
バス
賃料(税込)
共益費
札幌市中央区南一条西 札幌市南北線
大通
駅徒歩 4分 379,379円
87,549円
敷金
礼金
階部分
階建
広さ 物件種別
建築年月
4,138,680円
なし
6階部分
8階建
26.5坪(87.60m²) 店舗・事務所
1999/2/15

※広さの表記について
こちらは、募集上の目安であり、契約面積、登記面積とは異なる場合がございます。
※本資料は貸主及び管理会社からの情報を基に作成しており、物件写真・間取図・設備条件等において、現状と相違がある可能性がございます。
その場合は現状を優先とさせて頂きます。物件により、契約時に火災保険・水廻消毒料・町内会費・清掃料等が必要な場合がございます。
詳しくは担当店へお問合せ下さい。

株式会社エムズテナント事業部

札幌市白石区東札幌三条6丁目1-1 第2小竹ビル1F アパマンショップ白石店内

TEL.011-867-6667 FAX.011-867-6661

※お問い合わせの際に「お問い合わせ番号」と「エムズネットを見た」と
お伝えいただきますとスムーズです。
お問い合わせ番号:13772

店舗情報を見る 店舗に問い合わせ
戻る
進む
物件概要

お問合せ番号

13772

情報更新日

2026年04月02日

所在地

札幌市中央区南一条西

交通機関

札幌市南北線 大通 駅徒歩 4分
札幌市軌道線 西8丁目 3分

募集条件

事務所 、 店舗

建物構造

SRC(鉄骨鉄筋コンクリート造)

所在階/階建て

6階部分/8階建

入居可能日

即入居可

駐車場/形態

※駐車場の空き状況に関しましてはお問い合わせ下さい。

共有設備

電気 、 エレベーター 、 トイレ
冷暖房切替:5月/10月 稼働時間:24時間 ビル内照明時間:18時〜2時

専有設備

電気

その他費用

冷暖房費 29183円 諸経費他 11000円

お気に入りリストに追加
フロア情報

部屋番号

坪数/面積

賃料(税込)/共益費

種別

詳細

4F-2号室

27.3坪/90.10m²

390,203円/90,047円

店舗・事務所

物件詳細を見る

部屋番号 坪数/
面積
賃料(税込)/
共益費
種別 詳細
4F-2号室 27.3坪/
90.10m²
390,203円
90,047円
店舗・事務所 物件詳細を見る
地図

※地図の位置は実際の場所とは異なる場合がございますので情報掲載元にご確認ください。

お問い合せ
株式会社エムズテナント事業部

札幌市白石区東札幌三条6丁目1-1 第2小竹ビル1F アパマンショップ白石店内

TEL.011-867-6667 FAX.011-867-6661

※お問い合わせの際に「お問い合わせ番号」と「エムズネットを見た」と
お伝えいただきますとスムーズです。
お問い合わせ番号:13772

店舗情報を見る 店舗に問い合わせ
株式会社エムズ

〒003-0003 札幌市白石区東札幌三条6丁目1-1第2小竹ビル 1F アパマンショップ白石店内

TEL:011-867-6667 / FAX:011-867-6661

Copyright© 2013- M's Net Co.,Ltd. All rights reserved.